Handcrafted Log Homes and Log Cabins by Slokana Log Homes.
![]() | ||
|
|
|
| Barry 1st Floor | ||
![]() |
|
![]() |
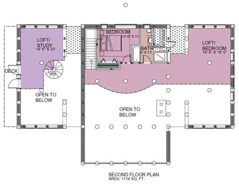
| Barry 2nd Floor | ||
To find out more about the many design features of this home please call or e-mail us at info@slokana.com .







